▋JB系列全液压步履式打桩架设备介绍
JB系列全液压步履式打桩架是公司自主研发的集机、电、液一体化步履式打 桩架,具有完全自主知识产权,并获2009年度上海市高新技术成果转化项目 荣誉证书。
本产品适应各种桩基施工需求,尤其能满足深基础施工中广泛采用的地下连续墙施工工艺(即SMW工法),亦可悬挂柴油打桩锤、静钻根植工法钻 机等各种基础施工设备,是高架道路、高速公路、桥梁、港口、码头、地 铁车站和高层建筑中桩基础施工的多功能、高稳定性施工设备。
▋JB160 技术性能特点
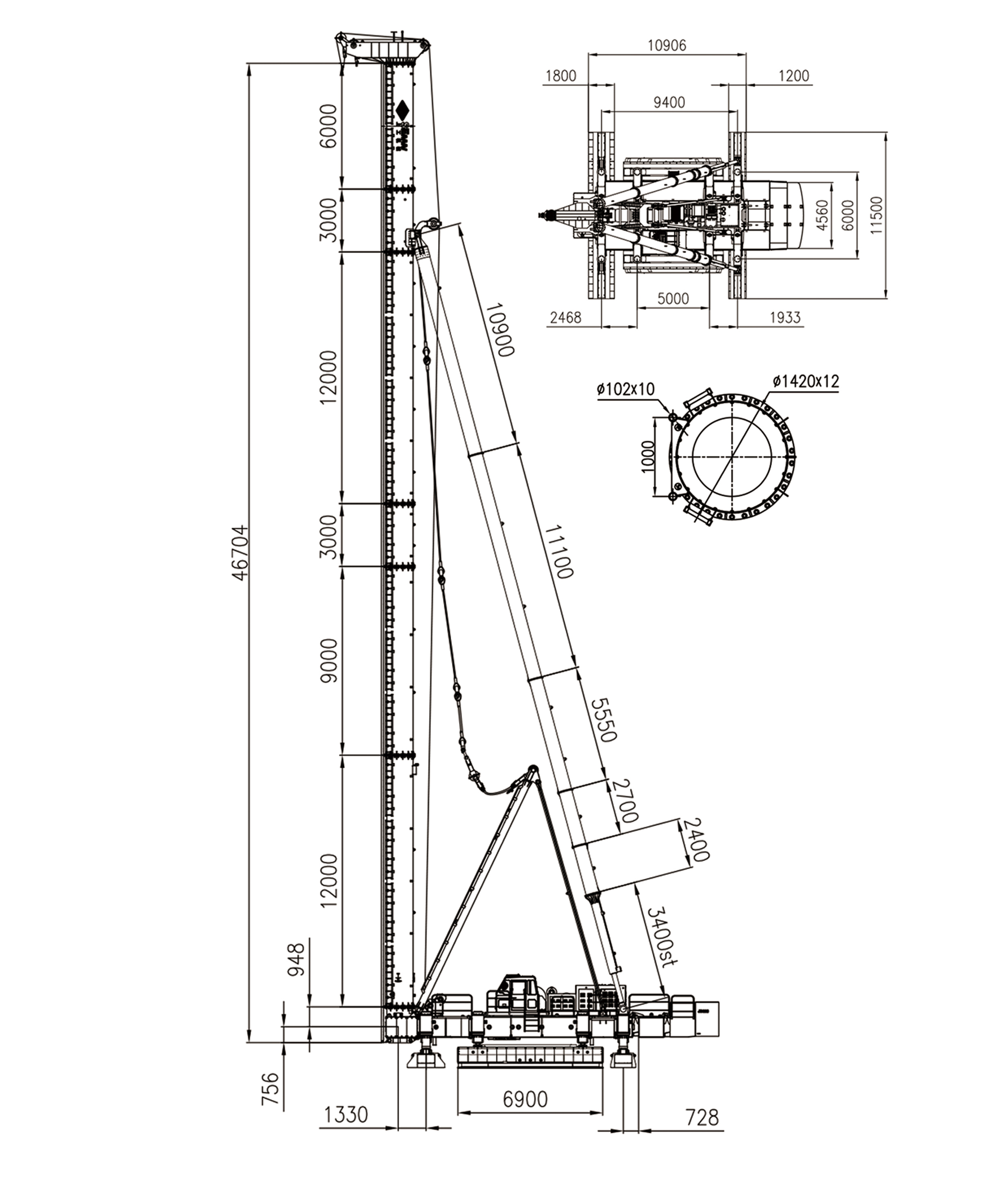
1、JB160A采用大容量卷筒,标准配置的立柱长度为39m,最高可加至42m,可满足多轴式连续墙钻孔机进行SMW工法施工。
2、JB160A横向步履油缸步长达3100mm,能充分满足SMW工法施工移位需要。独有的立 柱水平微调机构,行程达400mm,顶升油缸行程达到900mm,有效增加施工灵活性。 独有的自行起架机构,不借助辅助起重机,JB160A可完成39m立柱自行起架作业。
3、JB160A获国家授权专利7项,其中发明专利2项,具有完全自主知识产权。
4、JB160B在设备结构及电液部分进行了局部优化设计;驾驶室移动采用油缸推拉, 一键切换工作状态与运输状态,便于设备进行工地转场。
5、JB160B步履机构外侧采用平面式设计,便于施工中清除落在步履外侧的淤泥,有 效保护设备及提高施工质量。采用双速高性能卷扬,能更好的满足不同施工工法需求。
6、JB160B液压管路进行优化布管设计,采用全进口液压胶管及快速接头,使用寿命 长,可靠性高。

▋JB170 技术性能特点
1、采用大容量卷筒,JB170最高53米立柱,配合超深三轴连续墙钻 机,施工最大深度可达46米,配合ZLD五轴连续墙钻孔机施工时 最大深度达30米。 JB170顶升油缸增至8个,增加场地适应性。
2、独有的自行起架机构,不借助辅助起重机, JB170可完成53 米立柱自行起架作业。
3、JB170增加液压油箱外罩,整体外型美观,防止液压油箱 在施工场地暴晒,对油箱和滤油器起到了保护作用。
4、JB170自带立柱报警装置(选购件),在立柱起架拉伸至70°时自 动报警,提示驾驶员及时注意,防止立柱拉过90°。
5、JB170采用可移动驾驶室,便于安装运输,节约时间高效施工。

▋JB180 技术性能特点
1、JB180最高60米立柱,配合ZLD超深系列连续墙钻孔机(三轴)施工时最 大深度达53米,充分满足基坑围护和软土地基加固的施工要求。
2、采用耐重型结构工作底盘,也可配合长螺旋钻、振冲锤进行 大深度灌注桩作业。
3、JB180顶升油缸增至8个,增加场地适应性。
4、独有的自行起架机构,不借助辅助起重机, JB180可最高完成60 米立柱的自行起架作业。
5、JB180获国家授权专利6项,其中发明和实用新型专利各3项, 具有完全自主知识产权。
6、JB180可定制大尺寸驾驶室,安装空调设备(选配),提供人 性化配置。

▋JB220 技术性能特点
1、JB220打桩架主卷扬拉力达到14吨;陆上DCM处理系统专用桩架。
2、JB220驾驶室尺寸更大、可以放置DCM操作系统,操作更舒适, 通过显示屏幕随时观察施工状态,施工更便捷。
3、JB220打桩架使用大直径立柱,可以承担很大的起拔力,可满 足大型系列钻机对于大载荷的要求。
4、JB220打桩架主平台内部结构优化,提高抗弯强度、具备更强 大的稳定性。

▋JB系列全液压步履式打桩架设备参数
